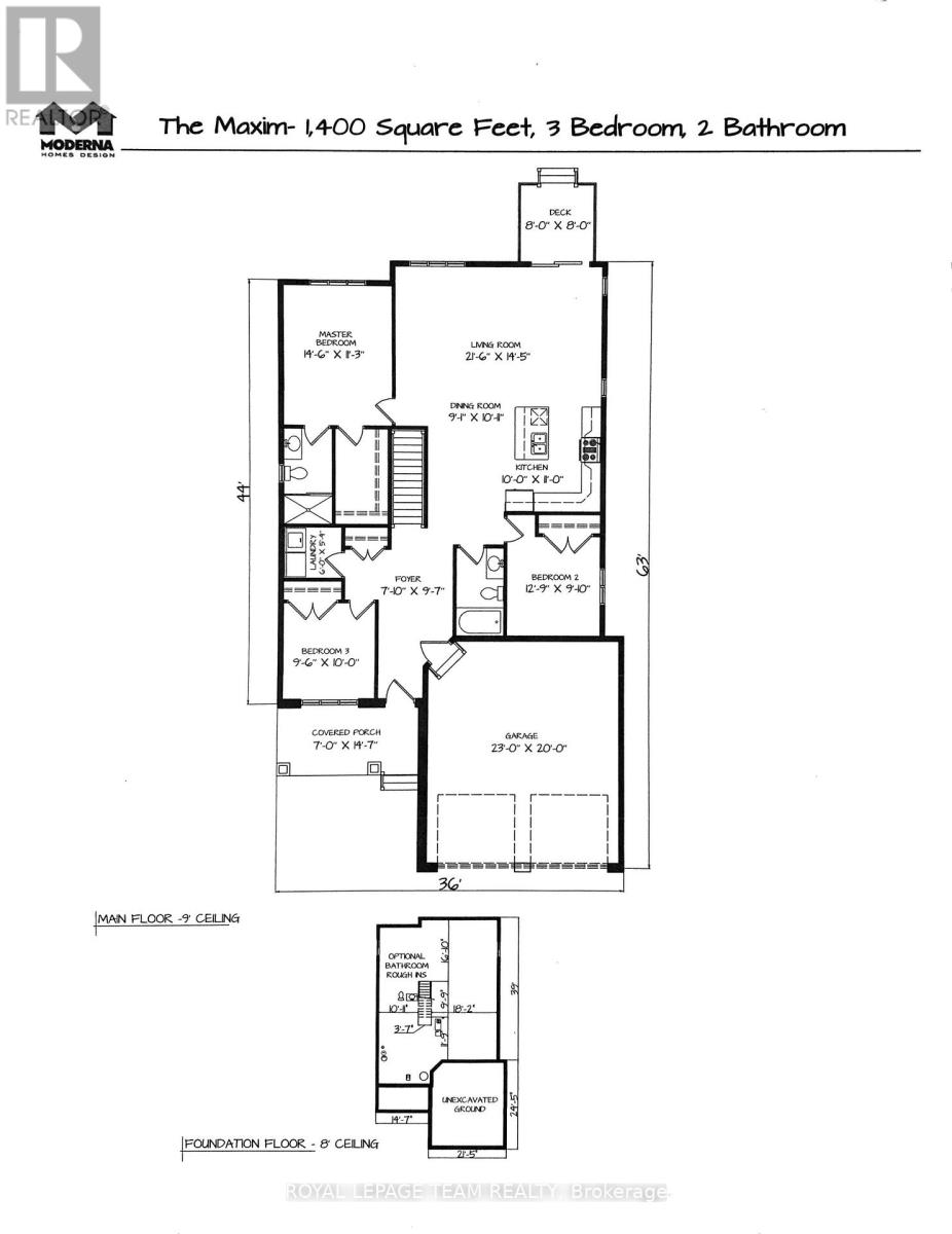
Welcome to the Maxime model (to be built) a stunning 1400 square-foot bungalow by Moderna homes. known for their quality and thoughtful design. Featuring three bedrooms, two full baths and an open concept, layout this home offers, premium finishes and soaring 9 foot ceilings. This Gourmet kitchen has a large island for plenty of prep space and an oversize garage for ample storage. Nestled in Behind Fitzroy Estates The spacious 134 x 193 Lot sits in the scenic Ottawa river waterfront community 15 minutes from Kanata. Enjoy endless outdoor recreation, hiking, biking beaches, boat, boating, and the Fitzroy Harbour provincial Park Outside the flood plane for peace and mind don't miss this chance to build your dream home (id:61210)
| MLS® Number | X12228637 |
| Property Type | Single Family |
| Community Name | 9401 - Fitzroy |
| Equipment Type | Water Heater |
| Parking Space Total | 6 |
| Rental Equipment Type | Water Heater |
| Bathroom Total | 2 |
| Bedrooms Above Ground | 3 |
| Bedrooms Total | 3 |
| Architectural Style | Bungalow |
| Basement Development | Unfinished |
| Basement Type | N/a (unfinished) |
| Construction Style Attachment | Detached |
| Cooling Type | None |
| Exterior Finish | Stone, Vinyl Siding |
| Foundation Type | Poured Concrete |
| Heating Fuel | Propane |
| Heating Type | Forced Air |
| Stories Total | 1 |
| Size Interior | 1,100 - 1,500 Ft2 |
| Type | House |
| Utility Water | Drilled Well |
| Attached Garage | |
| Garage |
| Acreage | No |
| Sewer | Septic System |
| Size Depth | 51.42 M |
| Size Frontage | 40.95 M |
| Size Irregular | 41 X 51.4 M |
| Size Total Text | 41 X 51.4 M |
| Level | Type | Length | Width | Dimensions |
|---|---|---|---|---|
| Main Level | Kitchen | 4.26 m | 3.04 m | 4.26 m x 3.04 m |
| Main Level | Dining Room | 3.65 m | 3.29 m | 3.65 m x 3.29 m |
| Main Level | Living Room | 4.02 m | 5.79 m | 4.02 m x 5.79 m |
| Main Level | Primary Bedroom | 4.14 m | 3.65 m | 4.14 m x 3.65 m |
| Main Level | Bedroom 2 | 3.04 m | 3.65 m | 3.04 m x 3.65 m |
| Main Level | Bedroom 3 | 3.04 m | 4.14 m | 3.04 m x 4.14 m |
| Cable | Available |
| Electricity | Installed |
https://www.realtor.ca/real-estate/28485151/161-old-pakenham-road-ottawa-9401-fitzroy
Contact us for more information
Stephanie Beauregard
Salesperson
(613) 258-1990
(613) 702-1804
www.teamrealty.ca/
Compare listings
Compare